Nachhaltigkeit
6 Min.

Nachhaltiges Wohnhochhaus setzt auf ressourcenschonende Beton-Bauweise

Kein anderer Zürcher Stadtteil entwickelt sich derzeit so rasant wie Altstetten. Das ehemalige Industriegebiet zwischen der Hardstrasse und dem Bahnhof Altstetten etwa wird Schritt für Schritt in ein modernes Wohn- und Arbeitsgebiet mit attraktiven Freiräumen und einem zeitgemässen Freizeitangebot umgewandelt.

Nachhaltiges Wohnhochhaus setzt auf ressourcenschonende Beton-Bauweise

Im Westen von Zürich wachsen die Hochhäuser in den Himmel. Augenmerklich im Gebiet zwischen der Hohlstrasse und den Zuggleisen. Aber auch entlang der Veloachse zwischen Altstetten und dem Stadtzentrum prägen die Hochbauten das Stadtbild - etwa die Hardautürme aus den 70er-Jahren oder der Neubau Basilisk beim Letzipark. In diese Linie reiht sich das Projekt an der Freihofstrasse 25 ein.

An der Kreuzung Basler-/Freihofstrasse entsteht das neue 80 Meter hohe Wohnhaus, das auf einem bestehenden Garagekomplex gebaut wird. Im Erdgeschoss sind öffentliche Räume geplant. Das erste Obergeschoss mit dem Gemeinschaftsraum, dem Dachgarten und den Ateliers wird zum Begegnungsort für die Bewohner. In den 23 darüberliegenden Stockwerken werden Wohnungen gebaut.

Die Geschichte weiterentwickeln

Das Projekt baut auf der Geschichte des Areals auf. Unter der filigranen Betonstruktur des ehemaligen Ausstellungs- und Montageraums der Autogarage entsteht eine Stadtloggia mit öffentlichen Nutzungen. Dieser Bereich grenzt an einen – ebenfalls öffentlichen – Platz, der mit zahlreichen Bäumen bepflanzt wird.

Nachhaltigkeit im Fokus

Die Verdichtung des Areals baut auf Bestehendem auf. Für das Wohnhochhaus ist eine filigrane, ressourcenschonende Betonstruktur mit einer Leichtbaufassade vorgesehen. Diese Bauweise ist nachhaltig und erinnert in ihrer Ausstrahlung an die industrielle Vergangenheit des Areals.

Die Freiräume um den Gebäudekomplex und im ersten Obergeschoss werden mit hiesigen Bäumen und Hecken bepflanzt und weisen durchlässige Böden auf. Drei unterirdisch in der Umgebung angelegte Versickerungsanlagen nehmen das Meteorwasser auf.

Um eine markante Reduktion der Parkplätze zu erreichen, ist zudem ein zeitgemässes Mobilitätskonzept angedacht.

Nachhaltiges Wohnhochhaus in Zürich-Altstetten: Die Marti AG Bauunternehmungen dokumentierte in diesem Video die Bauentwicklung des Projekts ALTO in Zürich-Altstetten.
Nachhaltiges Wohnhochhaus in Zürich-Altstetten: Die Marti AG Bauunternehmungen dokumentierte in diesem Video die Bauentwicklung des Projekts ALTO in Zürich-Altstetten.

Vorteile des Betons optimal genutzt

  • Langlebigkeit des Betons ermöglicht die Weiterverwendung bestehender Strukturen
  • Ressourcenschonende Betonstruktur ohne Minderung des Trittschalls und Feuerfestigkeit / Erdbebensicherheit
  • Massenreduktion durch Deckenstärken von 14 cm
  • Re-Use von Betonteilen im Aussenbereich
Andreas Sonderegger, Architekt bei pool Architekten
Andreas Sonderegger, Architekt bei pool Architekten
Stefan Bänziger von Schnetzer Puskas Ingenieure
Stefan Bänziger von Schnetzer Puskas Ingenieure

BETONSUISSE interviewte den Architekten Andreas Sonderegger von pool Architekten und den Ingenieur, Stefan Bänziger von Schnetzer Puskas Ingenieure.

Welche Faktoren haben eine Rolle gespielt, um bewusster mit Beton umzugehen und welche Tipps würden Sie anderen geben?

  • Erhalten statt ersetzen
  • Symmetrische Geometrie
  • Kompaktes Volumen
  • Direkter vertikaler Lastabtrag
  • Kurze Spannweiten (oder Unterzüge / Rippen)
  • Bauphysikalische Anforderungen hinterfragen (interner Schallschutz)
  • Systemtrennung (Einlagen vermeiden)
     

TRANSFORMATION UND VERDICHTEN

Was bedeutet eine Teiltransformation in diesem Projekt?
AS: Die schöne Betonstruktur der ehemaligen FIAT-Autogarage aus den 1950er Jahren kann grösstenteils erhalten werden: Ein baukultureller, aber auch ein nutzungsmässiger und ökologischer Mehrwert!

Was konnte erhalten werden und was wird neu gebaut?
AS: Die Shedhalle, sowie die Ausstellungs- und Montagehalle der Garage bleiben samt UG weitgehend erhalten. Wohnhochhaus, Tiefgarage (1. UG) und Luftschutzkeller (2. UG) sind die zentralen Neubauteile.

Welcher Einfluss hat der Erhalt auf die Planung des Neubaus des Wohnhochhauses?
AS: Nebst den üblichen Themen im Umgang mit bestehender Bausubstanz kommen hier einige Herausforderungen im Grundbau und in der Baustellenlogistik hinzu.

Weshalb ist das Verdichten zukünftig wichtig (was ist das Erfolgsrezept)?
AS: «Stadt der kurzen Wege» ist das Stichwort: mit der inneren Verdichtung kann nebst der Begrenzung des Siedlungsgebietes auch über neuartige Mobilitätskonzepte, über eine schlanke und umweltfreundliche Mobilität im Alltag der Bewohnerschaft nachgedacht werden.

Woran scheitert das verdichtete Bauen?
AS: Oft fehlt die Akzeptanz der von der Verdichtung Betroffenen: Ersatzneubauten führen zu oft zu einer Entfernung von etwas Gewohntem im Wohnumfeld und somit zu einem Identitätsverlust. Wohnhochhäuser erlauben eine punktuelle Verdichtung bei gleichzeitiger Schonung von Bestandsbauten und Freiräumen.
 

NACHHALTIGKEIT

Können Sie anhand des Projekts etwas zu den drei Komponenten der Nachhaltigkeit - Ökologie, Ökonomie und Soziales - sagen?
AS: Die Ökologie war Ausgangspunkt in der Wahl der Konstruktionsweise. Dazu kommt der Bautyp Hochhaus mit seiner beinahe unschlagbaren Kompaktheit, die zu einer Reduktion der Aussenhülle bzw. des Wärmeverlusts führt. Letztere Eigenschaften sowie der geringe Landverbrauch sind auch zentrale ökonomische Faktoren. Nutzungsmix im Sockel, öffentliche Stadtloggia, öffentlich gemachter Aussenraum und Gemeinschaftseinrichtungen für die Bewohnerinnen und Bewohner sind wichtige soziale Faktoren.

Wie ist das Hochhaus im Sinn der Kreislaufwirtschaft zu bewerten (Rückbau)?
AS: Indem Einlagen in der Betonkonstruktion abgesehen vom Bewehrungsstahl weitgehend vermieden und die Betonoberflächen grösstenteils roh belassen werden, ist eine einfache Trennung und Wiederverwendung der Baustoffe nach dem Rückbau sichergestellt. Leider geht das System aber nicht so weit, dass eine modulare Demontage und eine direkte Wiederverwendung möglich wäre.

Sind Hochhäuser nachhaltig?
AS: Hochhäuser sind nicht per se nachhaltiger. Doch gerade an gut erschlossenen Lagen können sie einen Beitrag zu einer dichten, ressourcenschonenden Bauweise bei geringer Alltagsmobilität sowie zu einem sparsamen Landverbrauch leisten. Die Alternative wäre in die «Breite» zu bauen. Dies wiederum benötigt Fläche und der Perimeter wird nicht optimal ausgenutzt.

Wie kann der (Beton)-Bau den Anforderungen von Nachhaltigkeit und Energieeffizienz gerecht werden?
AS: Stahlbeton ist das wichtigste Baumaterial der Gegenwart. Die Betonproduktion verbraucht allerdings Ressourcen und emittiert CO2. Sowohl Unternehmen wie auch die Forschung arbeiten an der ökologischen Verbesserung der Betonproduktion. Doch es gibt auch Verbesserungspotential in der Planung. Was wir von der Vergangenheit lernen können, ist ein sparsamer und verantwortungsvoller Umgang mit den Ressourcen – auch beim Beton.

Wie wird die Energieversorgung sichergestellt?
AS: Luftwärmepumpe, Wärmerückgewinnung aus Abwasser, Fassade mit PV-Anlage

Ist eine spätere Umnutzung möglich?
AS: Im Prinzip ja; das Wohnhochhaus ist in Skelettbauweise konzipiert. Ausser dem Kern sind alle Wände in Leichtbauweise ausgeführt.

Welche Gebäudezertifizierung (SNBS, BREEAM, LEED) wird für das Gebäude angestrebt?
AS: Geplant ist SNBS Gold.

Was ist die Aufgabe des Architekt*in, Ingenieur*in bezüglich nachhaltigerem Bauen (mit Beton)?
AS: Heute geht es nicht mehr nur darum, energetisch optimierte Bauten mit geringem Energiebedarf im Betrieb zu bauen. Die Gesamtenergiebilanz wird wichtig. Dies über den gesamten Lebenszyklus betrachtet. Damit rücken auch andere Themen, wie Mobilitätsverhalten der Nutzerinnen und Nutzer, in den Fokus.
 

BETON UND DECKENSYSTEME

Woher stammt der Beton?
AS: Das Betonwerk wird durch den Baumeister bestimmt, der momentan noch nicht beauftragt ist. Auf jeden Fall wird ein kurzer Transportweg angestrebt.

Wie viel Beton (Masse) kann im Vergleich zu einem Standardhochhaus der gleichen Dimension eingespart werden?
SB: Es werden etwa 1'450 m3 beziehungsweise 3'400 t Beton eingespart.

Wie viel CO2 konnte im Vergleich zu einem Standarthochhaus der gleichen Dimension eingespart werden?
SB: Mit den vorgesehenen Betonrezepturen beträgt die Einsparung rund 330 Tonnen.

Wäre ein reiner Holzbau oder ein Hybridbau ökologischer? Was sind die Vorteile von Beton in diesem Projekt? Weshalb hat man sich für Beton entschieden?
SB: Die Gegenüberstellung der Konstruktionsarten durch die Fachleute Nachhaltigkeit (Durable) hat für den Holzbau keinen ökologischen Vorteil ergeben. Einerseits wurde die Betonstruktur radikal verschlankt, um den CO2-Verbrauch zu minimieren. Andererseits führt vor allem der Brandschutz im Holzbau zu einer komplexen und materialintensiven Verkleidungsthematik.

Deckenkonstruktion: Der Bodenaufbau beträgt total 31 cm. Wie gross ist er im Vergleich zu einem Standardhochhaus?
SB: Heute werden in der CH-Praxis oft ca. 40-42 cm verbaut (28 cm Beton, 3-4 cm Trittschall, UB und Bodenbelag).

Wie kann eine 14-er Decke erreicht werden?
SB: Die Spannweite der Deckenplatten wird minimiert, indem im Abstand von 3.60 m vorfabrizierte Unterzüge mit einem Querschnitt von 40x30 cm verlegt werden. Indem diese durch einen Überbeton mit den schlanken Deckenplatten monolithisch verbunden werden, können sie eine Spannweite von acht Metern bewältigt werden. Mit dieser aufgelösten Konstruktion kann ein Betonäquivalent von knapp 18 cm erreicht werden, während bei einer konventionellen Skelettkonstruktion mit vergleichbaren Spannweiten 28 cm dicke Flachdecken erforderlich wären.

Was sind optimale Spannweiten?
SB: Die optimale Spannweite ist eine Frage der Deckenstärke. Nur wenn der interne Schallschutz wie im vorliegenden Fall nicht mit der Masse der Betonkonstruktion gelöst wird und zudem kaum Haustechnikleitungen in die Betonkonstruktion eingelegt werden, kann die Deckenstärke nach den statischen Anforderungen optimiert respektive minimiert werden. Für Flachdecken beträgt die Mindeststärke 20 cm, damit der im Hochhausbau erforderliche Feuerwiderstand von 90 Minuten gewährleistet ist. Bei einer Skelettbauweise mit einem regelmässigen, quadratischen Stützenraster wären damit Spannweiten um vier Meter am wirtschaftlichsten. Mit Unterzügen oder schottenartig angeordneten Tragwänden und einachsig gespannten Platten könnten diese hinsichtlich der Brandschutzanforderungen bis auf 10 cm minimiert werden. Aus konstruktiven Gründen sollte aber eine Plattenstärke von 14 cm nicht unterschritten werden, womit die gewählte Spannweite von 3.6 m als Optimum zu bezeichnen ist.

Situationsplan (Quelle: pool Architekten)
Situationsplan (Quelle: pool Architekten)
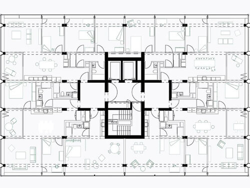
Regelgeschoss
Regelgeschoss
Baugrube
Baugrube
Deckenschnitt
Deckenschnitt
Längsschnitt
Längsschnitt

Zahlen und Fakten

Bauherrschaft:
HIAG Immobilien Holding AG

Architekt:
pool Architekten

Ingenieure:
Schnetzer Puskas Ingenieure

Realisierung:
Start August 2023

Fertigstellung:
Januar 2026

GF:
23300 m2

GV:
77400 m3

Energielabel:
SNBS Gold

Bausumme:
CHF 86 Mio.

Mehr Wissen rund um Beton:

Nachhaltigkeit

Energiesparende Heiz- und Kühlsysteme in Mehrfamilienhäusern

Betondecken als effizientes Wärme- und Kälteabgabesystem: In Egnach setzt ein neues Mehrfamilienhaus auf wegweisende Technologie für energiesparendes Heizen und Kühlen. Eine moderne Wärmepumpenlösung nutzt Erdwärme und thermische Bauteilaktivierung, um ein bemerkenswert angenehmes Raumklima zu schaffen.

Mehr
Nachhaltigkeit, Interview

Smart, effizient, nachhaltig – Wie die Sisag ihr Gebäude zum Vorbild macht

Ein Blick zurück zeigt: Der «SisCampus» in Schattdorf verbindet ein durchdachtes Energiekonzept mit einer reduzierten technischen Ausstattung - ohne Kompromisse. Bauherr und Architekt setzten auf passive Prinzipien, thermische Masse und gezielte Automation. Das Gebäude passt sich den klimatischen Bedingungen an, ohne überflüssige Technik.

Mehr
AG kaufen, AG verkaufen und AG gründenWaldis MarkenmöbelAntriebslösungen, Antriebstechnik, motion ControlPlafondnova - Deckensysteme WandsystemeWaldis Berry BüroplanungPhotovoltaikanlage, SolartechnikObstbrände SempacherseePlanung von professionelle InnenbeleuchtungBüroeinrichtung LuzernBüroplanung ZürichCreanetBüroplanung LuzernPhotovoltaikAusbildungsangebot für Strassenbauer und TiefbaumitarbeiterLeuchten und LeuchtsystemeMetallbau, Balkonverglasung, SitzplatzverglasungBeton Baustoff für die Zukunft